The Daitch Building
Augusta, GA, 30901
$1,550,000
Sale Price
Property Details
Highlights
- LIST PRICE: $1,550,000
- VALUE-ADD: This property offers a wide range of value-add potential with 3 stories and over 20K SF of space. With the bottom floor retail space and the other two stories of shell space, with some renovations, an investor could potentially achieve a fully leased-out building.
- RETAIL SPACE FOR LEASE: The owner currently operates their business out of the bottom floor and upon closing would vacate leaving the potential for an owner to operate their own business out of the bottom floor or to lease out the space to a retailer.
- RECENT UPGRADES: The property features some major recent upgrades including the roof being TPO coated and sealed ($88K) and the sprinklers on all three floors have had the valves and heads replaced potentially bringing the building up to code.
- HISTORIC TAX CREDITS AND OPPORTUNITY ZONE: The building’s renovations could potentially qualify for historic tax credits and the property falls within an opportunity zone which could help save money and increase returns.
- PREMIUM LOCATION: Both the retail and apartments benefit from this property's prime location. Being located in the heart of downtown Augusta, the retail spaces are in a high-demand area due to the continued growth of new restaurants, bars, and businesses re-entering the area. Additionally, the apartment units benefit from being in close proximity to the medical district, the cyber center, and Augusta University which is a major hub for medical, dental, and nursing students.
Property Description
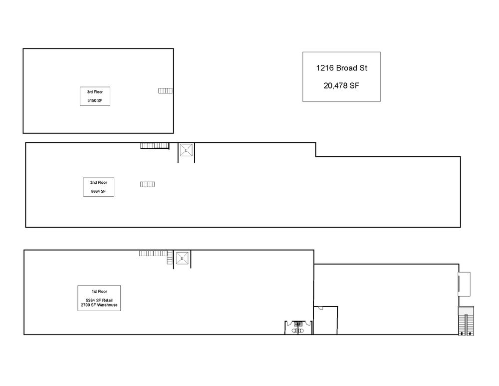
The Finem Group at Meybohm Commercial is proud to present this Historic Downtown Storefront for Sale in Augusta, Georgia. Built in 1911 and located in the Augusta Downtown Historic District, this three-story Broad street building with over 20,000 sq ft of space has been family occupied and owned since the 1930’s and now available for sale. Commonly referred to as the Daitch Building, the first floor offers 8,664 square feet of retail space that is currently divided into a retail/showroom space in the front with offices, restrooms and prime access for visitors and shoppers on the prime 1200 block of Broad Street and has a warehouse space in back. The second floor is 8,664 sq ft, and currently used for storage. The third floor is a 3,150 square foot historic shell, ready for renovation, with the original historic elements such as mantles and pocket doors intact. This building has been well cared for and offers unique features like a loading dock with a rollup door in a gated rear loading zone. Recent updates in the past two years have been to the roof that was TPO coated and sealed ($88K) and the sprinklers on all three floors have had all the valves and heads replaced bringing it up to code for the next 50 years. Utilities and plumbing have been updated with the front retail space featuring 2 Rheem 5ton heating and air systems and there is a new 6 ton unit ready to be installed in the warehouse. The building also features a working freight elevator and a fully monitored security and fire system in addition to great historic character throughout like heart pine floors, large windows with a great view onto Broad Street and more. This building qualifies for Historic Tax Credits & Opportunity Zone programs which allows for potential residential and office developments. The third floors feature original fireplaces, pocket doors and heart pine floors that have all been preserved and are waiting to be restored. There is an extra lot available in the rear of the property that is not included in the sale).
Available Spaces
Location
Loading map...
Explore More Opportunities Nearby






