150K SF Aiken Warehouse For Lease
Aiken, SC, 29801
$4.25 / SF / Year
Lease Rate
For Lease
Property Details
Lease Rate$4.25 / SF / Year
Year Built1980
Property TypeIndustrial
Building Size154,000 SF
Highlights
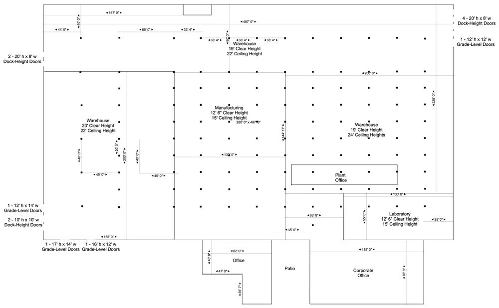
- The 154,000 square foot facility features 24' to 22' foot ceilings
- Sprinkled throughout, offers heavy-duty power, thick slab
- 4 grade-level doors and 8 dock-height doors
- Parking: 215 Car Spaces and 40 Truck Spaces
- Located in Aiken, SC on University Parkway (9.7K VPD), just 4.5 miles from I-20
- Expandable to 250K square feet upon execution of long-term lease
Property Description
150K SF of warehouse space for sale.
Available Spaces
Space #1429596$4.25 / SF / Year
154,000 SFAvailable: Now
Location
Loading map...



Interested in This Property.
Request More Info
Explore More Opportunities Nearby
For Lease
231 Marlboro Street SoutheastAiken, SC, 29801
Lease Available|6,960 SF|Industrial

For Sale
65 Windham BlvdAiken, SC, 29805
$8,500,000|260,000 SF|Industrial

For Lease
334,105 SqFt Industrial building | 2 Spaces available for LeaseGraniteville, SC, 29829
Lease Available|334,105 SF|Industrial

For SaleFor Lease
13,000 SF Flex Space | Warehouse | ShowroomGraniteville, SC, 29829
$1,550,000|13,000 SF|Industrial
